Mieten
Ihre neue 4-Zimmer-Wohlfühloase
Blücherstr. 11 , 01917 Kamenz
Details
| Objekt Nr.: | 001-0024-0221 |
| Zimmeranzahl: | 4 |
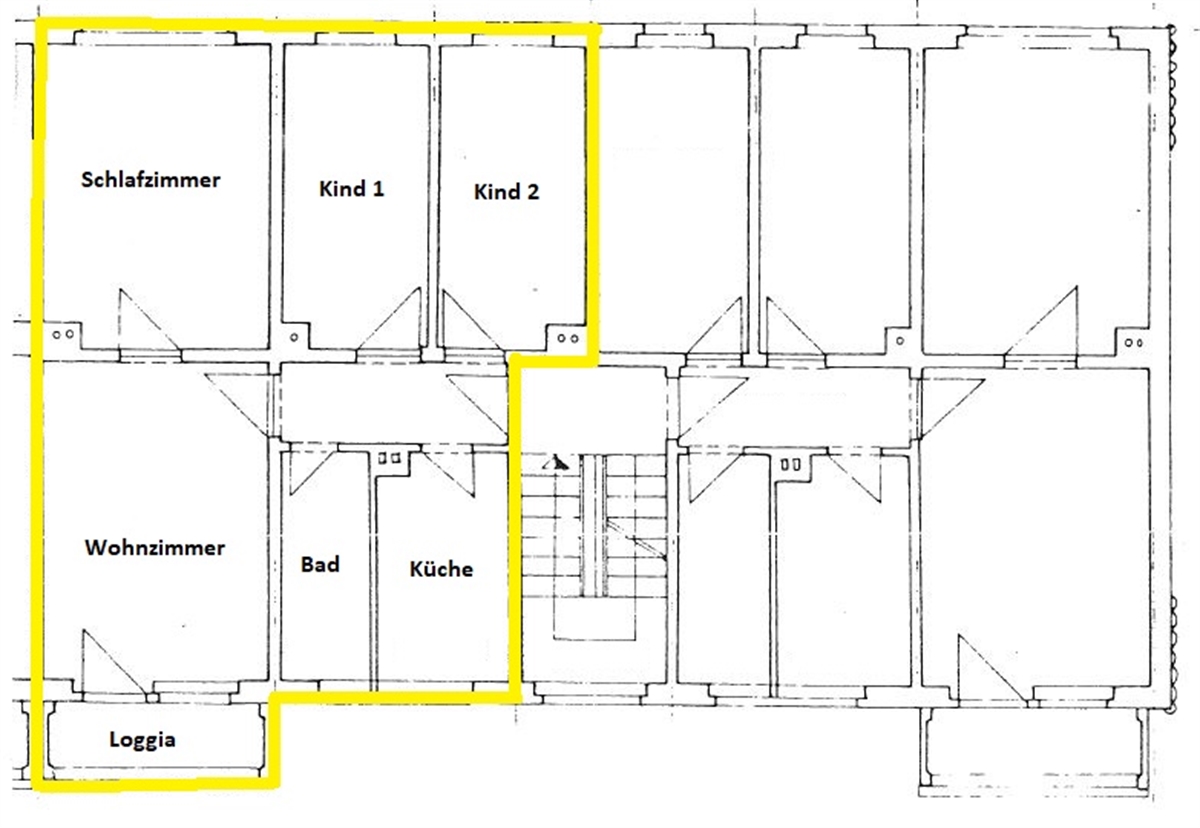
| Wohnfläche: | 68,82 m2 |
| Lage: | 1. Etage |
| Verfügbar ab: | sofort |
Merkmale der Wohnung
| Wohnungszustand: | voll saniert |
| Ausstattung: | Balkon, Bad mit Fenster, Wanne |
Zahlen und Fakten
| Gesamtmiete: | 685,00 € |
| Kaltmiete: | 485,00 € |
| Nebenkosten: | 100,00 € |
| Heizkosten: | 100,00 € |
| Geschäftsanteile: | 1.500,00 € |
| Eintrittsgeld: | 10,00 € |
Energieverbrauch
| Energieverbrauchkennwert: | 60 kWh/m2a |
| Baujahr: | 1980 |
| Wertklasse: | B |
| Heizung: | Zentralheizung, Fernwärme (Verbrauchsausweis) |
Ausstattungsbeschreibung
Suchen Sie viel Platz für die Familie, ein helles Home-Office oder einfach Raum zur Entfaltung?
Diese attraktive 4-Zimmer-Wohnung kombiniert großzügiges Wohnen mit gemütlichen Details und ist ab sofort für Sie verfügbar.
Die Wohnung besticht durch einen durchdachten Grundriss, der Funktionalität und Gemütlichkeit vereint. Durch die Lage im 1. Stock profitieren Sie von kurzen Wegen, ohne auf Ihre Privatsphäre verzichten zu müssen. Die großen Fenster sorgen in allen vier Räumen für eine freundliche, einladende Atmosphäre.
Das Herzstück der Wohnung ist das geräumige Wohnzimmer mit direktem Zugang zum Balkon. Das Badezimmer ist klassisch ausgestattet und lädt mit der Badewanne zu entspannten Stunden ein.
Wohnumfeld
Alles, was Sie brauchen, ist ganz in Ihrer Nähe:
In Kamenz-Ost erwartet Sie eine Wohnung mit hoher Lebensqualität. Alle Annehmlichkeiten des täglichen Bedarfs – von Supermärkten über Arztpraxen bis hin zur Post – sind fußläufig zuerreichen. Familien profitieren von der Nähe zu Grundschule und Kindergärten. Und wer die Natur liebt, freut sich über die zahlreichen Parks und Kleingartenanlagen in der Umgebung.
Infrastruktur
Kamenz überzeugt durch eine attraktive Lage am Rande des Lausitzer Berglandes mit schnellen Wegen in das nahegelegene Seenland. Dank der direkten Zugverbindung nach Dresden profitieren Pendler von einer optimalen Erreichbarkeit der Landeshauptstadt. Im Stadtgebiet finden Bewohner alles für den täglichen Bedarf – von vielfältigen Einkaufsmöglichkeiten und Ärzten bis hin zu einem lückenlosen Angebot an Kitas und Schulen. Die historische Altstadt bildet mit ihren charmanten Cafés den Mittelpunkt einer herzlichen Nachbarschaft. Für die Freizeit bietet die Umgebung das Beste aus zwei Welten: Wanderungen in den Hügeln der Westlausitz und Wassersport an den nahen Seen. Die ruhige Atmosphäre und die kurzen Wege machen die Stadt zum idealen Wohnort für Familien und Berufstätige.
Objektanfrage
Felder die mit * gekennzeichnet sind, sind Pflichtfelder.
Ansprechpartner
| Name | Frau Pötzscher |
| vermietung@wbg-kamenz.de | |
| Telefonnummer | 03578315310 |
