Mieten
Ihre neue 4-Zimmer-Wohlfühloase
Blücherstr. 11 , 01917 Kamenz
Details
| Objekt Nr.: | 001-0024-0231 |
| Zimmeranzahl: | 4 |
| Wohnfläche: | 68,82 m2 |
| Lage: | 2. Etage |
| Verfügbar ab: | 01.09.2026 |
Merkmale der Wohnung
| Wohnungszustand: | voll saniert |
| Ausstattung: | Balkon, Bad mit Fenster, Wanne |
Zahlen und Fakten
| Gesamtmiete: | 675,00 € |
| Kaltmiete: | 475,00 € |
| Nebenkosten: | 100,00 € |
| Heizkosten: | 100,00 € |
| Geschäftsanteile: | 1.500,00 € |
| Eintrittsgeld: | 10,00 € |
Energieverbrauch
| Energieverbrauchkennwert: | 60 kWh/m2a |
| Baujahr: | 1980 |
| Wertklasse: | B |
| Heizung: | Zentralheizung, Fernwärme (Verbrauchsausweis) |
Ausstattungsbeschreibung
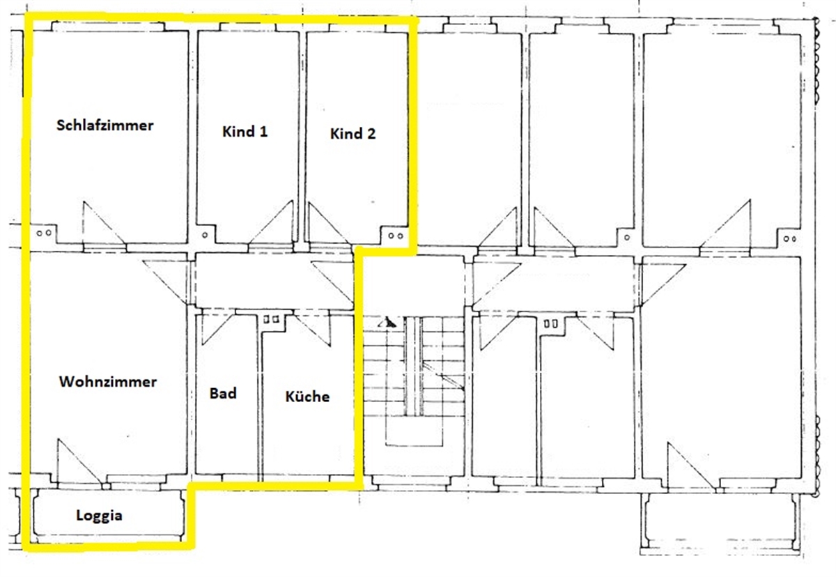
Sie suchen ein neues Zuhause, das Platz, Licht und eine tolle Aussicht bietet? Diese charmante 4-Zimmer-Wohnung im 2. Obergeschoss überzeugt durch eine ideale Raumaufteilung und ist ab 01.09.2026 bezugsfertig.
Diese Wohnung bietet auf der mittleren Etage genau die richtige Mischung aus Wohnkomfort und Ausblick. Durch die Lage im 2. Stock genießen Sie besonders viel Tageslicht in allen Räumen.
Der durchdachte Grundriss trennt den Wohnbereich geschickt von den Schlaf- und Arbeitszimmern. Vom Wohnzimmer aus treten Sie direkt auf den Balkon, der den Wohnraum optisch erweitert. Das Badezimmer mit Badewanne ist die perfekte Ergänzung für alle, die nach einem stressigen Tag abschalten möchten.
Wohnumfeld
Alles, was Sie brauchen, ist ganz in Ihrer Nähe:
In Kamenz-Ost erwartet Sie eine Wohnung mit hoher Lebensqualität. Alle Annehmlichkeiten des täglichen Bedarfs – von Supermärkten über Arztpraxen bis hin zur Post – sind fußläufig zuerreichen. Familien profitieren von der Nähe zu Grundschule und Kindergärten. Und wer die Natur liebt, freut sich über die zahlreichen Parks und Kleingartenanlagen in der Umgebung.
Infrastruktur
Kamenz überzeugt durch eine attraktive Lage am Rande des Lausitzer Berglandes mit schnellen Wegen in das nahegelegene Seenland. Dank der direkten Zugverbindung nach Dresden profitieren Pendler von einer optimalen Erreichbarkeit der Landeshauptstadt. Im Stadtgebiet finden Bewohner alles für den täglichen Bedarf – von vielfältigen Einkaufsmöglichkeiten und Ärzten bis hin zu einem lückenlosen Angebot an Kitas und Schulen. Die historische Altstadt bildet mit ihren charmanten Cafés den Mittelpunkt einer herzlichen Nachbarschaft. Für die Freizeit bietet die Umgebung das Beste aus zwei Welten: Wanderungen in den Hügeln der Westlausitz und Wassersport an den nahen Seen. Die ruhige Atmosphäre und die kurzen Wege machen die Stadt zum idealen Wohnort für Familien und Berufstätige.
Objektanfrage
Felder die mit * gekennzeichnet sind, sind Pflichtfelder.
Ansprechpartner
| Name | Frau Pötzscher |
| vermietung@wbg-kamenz.de | |
| Telefonnummer | 03578315310 |
